A pUBLIC CROSSING

Artistic Illustration of Proposed O-train Gladstone Station

CONNECTION BETWEEN THE CITY AND COMMUNITY

Location: Little Italy - Ottawa, Ontario, Canada

Partner: Shelby Hagerman

Instructor: Zach Colbert

Housing accounts for most of what we call cities – 90% or more of the built fabric. To tackle the issue of housing, is to engage the issue of city-making. To understand the form cities take we must appreciate housing preferences, consider the impact of various modes of transportation, and explore innovative alternatives that improve the quality of life for the full range of inhabitants.

The trend seen in Ottawa is an increase in the overall number of households, a decrease in the size of households, and an increasing number of empty nesters. These demographic changes are driving a change in demand for housing: from single-family houses to apartments and condominiums. A Public Crossing tackles these challenges around the anticipated Gladstone O-Train station in Little Italy, Ottawa. Based in a location that lacks basic resources to support its growing neighbourhoods. This proposal aims to rejuvenate the area by providing community and commercial programming across the site.

PHASE 1 - MASTERPLAN

Given the site's advantageous location near several communities and adjacent O-train stations, this proposal is centered on establishing a vibrant community hub interconnected with the O-train station. The station itself becomes a dynamic focal point, anchored by an expansive boardwalk that extends over the train platform. Above this, a lower commercial corridor offers an array of local businesses and artist workshops.

To enhance accessibility and foster a sense of synergy, footbridges span the transit line, seamlessly connecting commuters and passersby to the artist workshops and businesses lining the boardwalk. This integrated public crossing is intentionally designed to facilitate interaction, encouraging residents and visitors to share ideas and experiences while traversing the area. It aims to be a hub of both convenience and community, where the convergence of diverse individuals can lead to shared inspiration and collaboration.

Section/North Elevation

Artistic Illustration of Building Entrance

PHASE 2 - BUILDING DEVELOPMENT
Nestled at the crossroads between the bustling public domain of the plaza and the adjacent residential neighborhoods, one of the residential buildings stands as a beacon of community integration. This building embodies the core objective of the residential development – to introduce an array of novel amenities and communal spaces that would cater not only to the new arrivals but also enhance the quality of life for existing residents within the neighborhood.

This approach provides the local community with invaluable opportunities to foster connections and a greater sense of togetherness among its members. The deliberate alignment of the pedestrian pathways in the plaza with the existing neighborhood roads not only preserves the neighborhood's familiar urban character but also promotes ease of movement for all residents.

In addition to residential structures, we have thoughtfully incorporated a school and various multipurpose rooms along these pathways. This positioning allows for a wide range of community programs and activities to unfold, creating a lively and engaging environment that nurtures local connections and shared experiences. This project represents a commitment to community cohesion, where new and old coexist harmoniously, creating a neighborhood that thrives on its sense of unity and inclusivity.

parti height.jpg
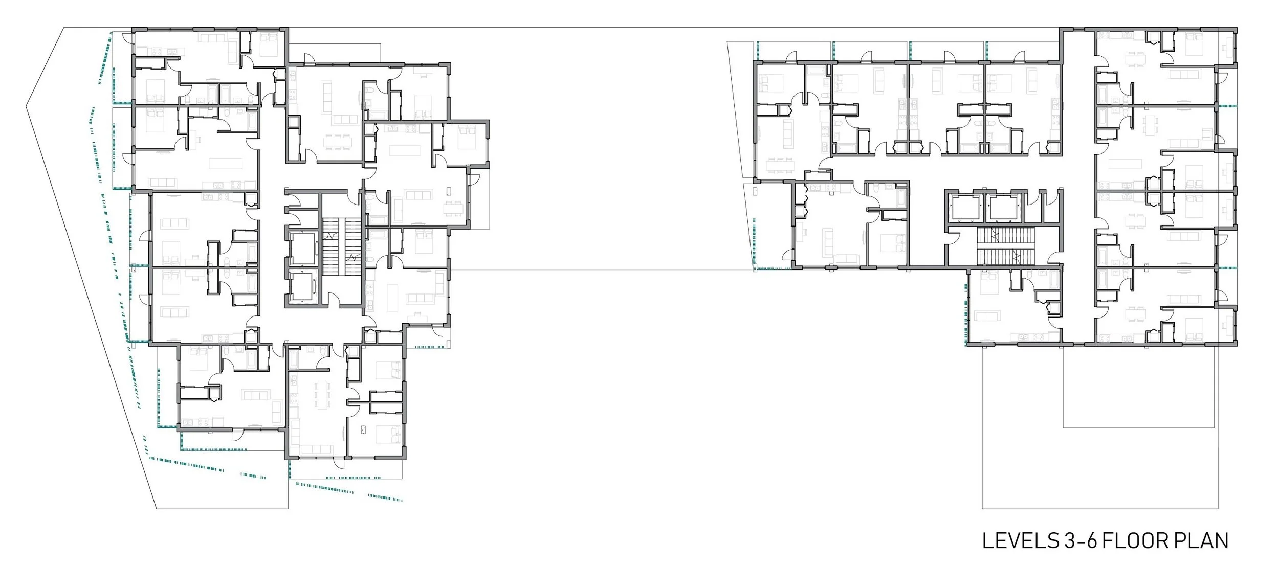
housing floor plans - Copy - Copy.jpg

South Elevation Building Section

The building's design prioritizes interconnectivity within its surroundings. Residents have the opportunity to enjoy views of external public areas as well as interior multi-purpose rooms. Balconies are strategically oriented toward expansive public spaces, allowing residents to observe and potentially engage in events taking place just outside.

To enhance the living experience, vertical louvers along the balconies serve a dual purpose: they filter sunlight, creating a pleasant atmosphere, while also providing a degree of privacy, effectively delineating the boundaries between the street and individual residences. This architectural approach seamlessly integrates public and private spaces, fostering a sense of community while respecting personal living spaces.

Artistic Illustration of Pedestrian Pathway

Building Details